Skip to main content
University of California, Riverside School of Medicine
Search
UC Riverside
SOM Facilities and Space Planning
Growing with the School of Medicine
Search
Home
About
Facilities Matters (Building Committee)
Campus Facilities Cleaning Schedule
Events Space
Emergency Action Plans & Information
Emergency Action Resources & Documents
BSEC Team
Emergency Assembly Area (EAA)
Forms & Workflows, Guidelines
Forms & Workflows
Guidelines
Zoom Phones & Rooms
Zoom Workspace Scheduler
Quick Start Guide For Using Zoom Phone
Workspace Scheduler Q&A
Breadcrumb
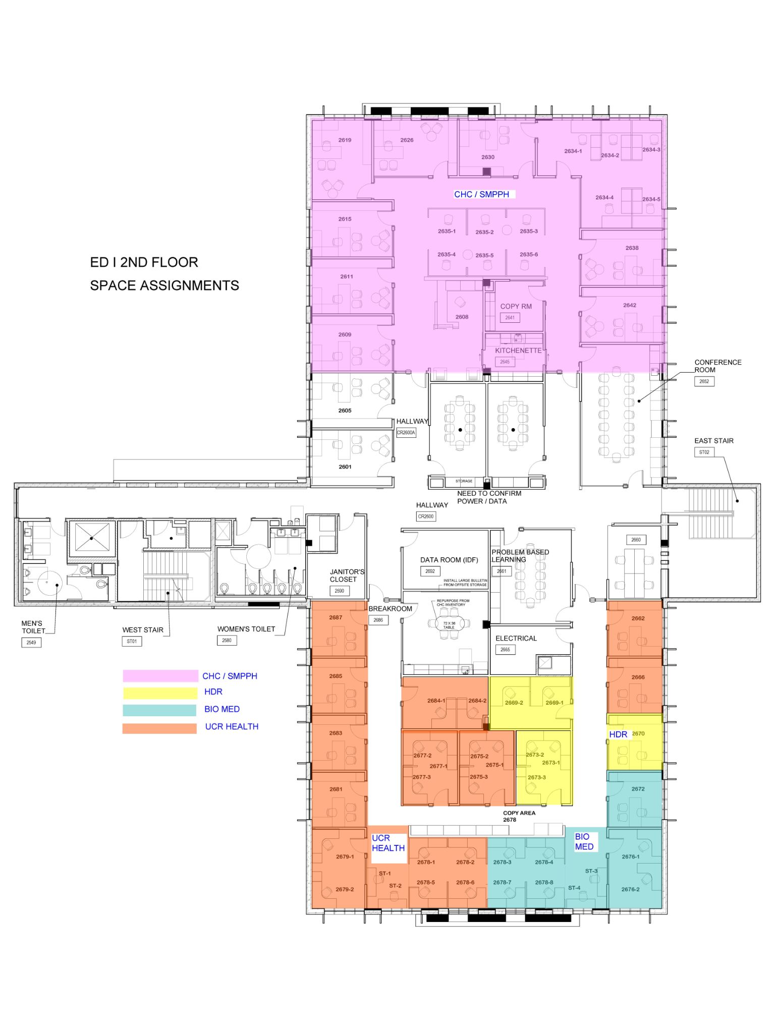
Ed I 2nd Floor
Ed I 2nd Floor
Please Click Here to Download the Image
×
Let us help you with your search
Enter your Search Criteria.
Search All UCR
Search This Site
Cancel